滾筒硬質快速卷簾門
洛陽豫歐門窗科技有限公司
手機:130-0758-1500
電話:0379-60867186
傳真:0379-62692038
郵箱:info@lyyuou.com
網址:http://m.carsv.com.cn
地址:河南省洛陽市孟津縣常袋鎮姚凹工業區
產品詳情
滾筒式硬質快速門也稱為鋁合金快速門,是一種防盜、高溫隔斷的新型金屬快速門。本產品具有很高的可靠性、實用性、易操作及快速修復等特性。驅動控制采用了穩定、節能、準確的伺服系統來保障門體的可靠運行,確保每年無故障運行達10萬次以上。
廣泛用于地下車庫、汽車制作廠、食品、化學、紡織、電子、超市、冷凍、物流、倉儲等多種場所,可極高的滿足高性能物流及潔凈場所。


| 滾筒硬質快速卷簾門 | |
| *大尺寸 | 8m寬*8m高 |
| 開閉速度 | 0.2m-0.4m每秒 |
| 工作電壓 | 單相 220±10%V,50/60HZ,或 三相380±10%V, 50/60HZ |
| 聚氨酯密度 | 48kg/m3±2kg/m3 |
| 抗風性能 | 10-12級, 28m/s-35m/s |
| 隔音等級 | 24db |
| 絕緣等級 | 0.38 W/m°C |
| 水密性 | 30 Pa |
| 隔熱系數 | 1.5w(m2K) |
| 導熱系數 | ≤0.033W/m.k |
| 顏色 | 灰、藍、白、鋁合金原色、金色 |
| 密封 | 三元乙丙密封條 |



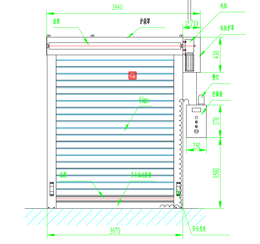
1.門板;

雙層1.0mm鋁合金門板,門板厚度10mm,中間填充聚氨酯發泡材料,具有阻燃、保溫作用
2.電機及護罩;

它包括兩個導軌,一個頂蓋和一個電機蓋。
標準材料:鍍鋅鋼,表面為涂漆;
可選材料:304不銹鋼
厚度:導軌厚度為1.5mm,頂蓋和電機蓋厚度為1.0mm
3.電機及控制箱;

A. 意大利伺服技術電機。反應更穩定、更快。
B. 意大利式伺服技術控制器,帶英文接口,使用方便。
C. 雙編碼器,絕 對編碼器+內置增量編碼器,更準確,維護更少。
4.顏色;

5.安全裝置 (以下三種為標準配置)
A. 光電傳感器.

當門下有人或車輛時,門會停止關閉,自動站起來。這將避免意外碰撞.
B. 安全底部氣囊傳感器.

當門的底桿碰到什么東西時,它會立即停止開門運轉,并自動關閉。
C.報警燈和緊急按鈕.

6.開啟方式;





advantage
4大核心優勢
技術創新
我公司技術研發人員25人,制作安裝團隊42人,所有員工都經過優良的技術培訓和教育
生產設備
多年的工業門研發,生產,安裝經驗。廠區面積23000m2,多條工業門流水線,加工成型設備60余臺
售后服務
省內客戶24小時內到達現場,48小時內故障恢復。省外客戶48小時內到達客戶現場,72小時內故障恢復
銷售網絡
源于品質和對服務的堅持,基于客戶的支持和信賴,多年來,獲得了客戶的好評,并在國際市場獲得了一定的知名度
售后團隊
為您一一解答疑問
產品保障
無憂物流
運輸我們幫您安排

電話
微信
留言